With a total of 250m² of living space and five bedrooms, Chalet Tire Bouchon offers ample accommodation for two families or a large group of friends.
The main entrance is on the ground floor, with an entrance corridor leading to three bedrooms, a laundry room and stairs leading to the first floor.
On the first floor at the front of the chalet there is a large open-plan living and dining space which has beautiful wood floors and ceiling panelling. Windows on three sides flood the space with light, and french doors open to a wrap-around balcony with fantastic views over Verbier, the Val de Bagnes and the high mountains of the Combins massif and beyond.
At one end of the living space, an L-shaped sofa and a pair of armchairs are arranged around a glass coffee table in front of an imposing open fireplace. At the other end is the dining space, with a long ten-seater table and a traditional painted wooden armoire and antique sideboard.
Two open arches connect the living/dining space to the kitchen and a second, informal dining area with a table and seating for six on wooden chairs and a corner bench. The kitchen is kitted out with pale stone worktops, sleek painted wooden cabinets and shelves, and state of the art appliances. A glass door leads to a lovely stone terrace at the side of the chalet and the garden.
Across the landing from the kitchen is the chalet’s media room, with plush sofa and a large flat screen TV with a surround sound system.
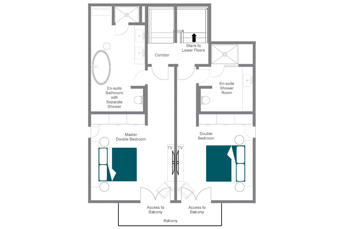
On the top floor are the master bedroom and a second double bedroom. The Master has an en suite bathroom with an oval tub, separate shower and twin sinks, and the other bedroom has an en-suite shower room. Both bedrooms have access to a shared balcony at the front of the chalet.
The ground floor bedrooms comprise two doubles and a twin bunk bedroom. One of the double bedrooms has an en suite bath and shower room, and the other has an en suite shower room. The bunk room has an en suite bathroom and access to a terrace.
The chalet has wireless internet access and a networked Sonos sound system and all the bedrooms have wall-mounted TVs. There is a garage with space for three vehicles and a ski locker.
Chalet Tire Bouchon perfectly combines traditional alpine charm with contemporary design and amenities, all executed to the high standard typical of modern Swiss mountain properties. With its luxurious, serene ambience and secluded location surrounded by nature, this is a perfect location for a memorable Verbier holiday.




