With an overall living space of 330m2 set across four floors, Chalet Petit Ours accommodates up to eleven guests in six individually designed and decorated bedrooms. It’s a great choice for large groups of friends or families looking for a luxury mountain hideaway in which to spend a relaxing holiday.
The interiors are warm and welcoming, with a fusion of traditional aged wood, modern furnishings and rich textures. The main entrance is on the ground floor via a large ski room equipped with boot warmers and ample storage for skis. Stairs lead up to the first floor where a TV room with an open fireplace and comfy L-shaped sofa is an ideal space for younger family members to retreat.
On the second floor, the main living area has double height vaulted ceilings and a beautiful stone fireplace surrounded by plump sofas adorned with cushions and faux-fur throws. Sliding glass doors fill the space with lots of natural light and open onto a large balcony with stunning views. At the end of a great day’s skiing, guests can relax here with a pre-dinner drink and watch the sun dip behind the mountains. The adjacent dining area has a 10-seater dining table surrounded by beautifully upholstered chairs and mountain views. The separate, well-equipped kitchen has double doors which can be closed for privacy. There is also an office and guest WC.
Chalet Ours has six beautiful bedrooms decorated in a contemporary alpine style and accessorised with sumptuously soft throws in restful tones. Tucked under the eaves on the top floor, the master bedroom has a private balcony, dressing room, and an en suite bathroom with a bathtub and separate shower. Also on this floor are two double bedrooms which have en suite shower rooms, and one room also has a private balcony.
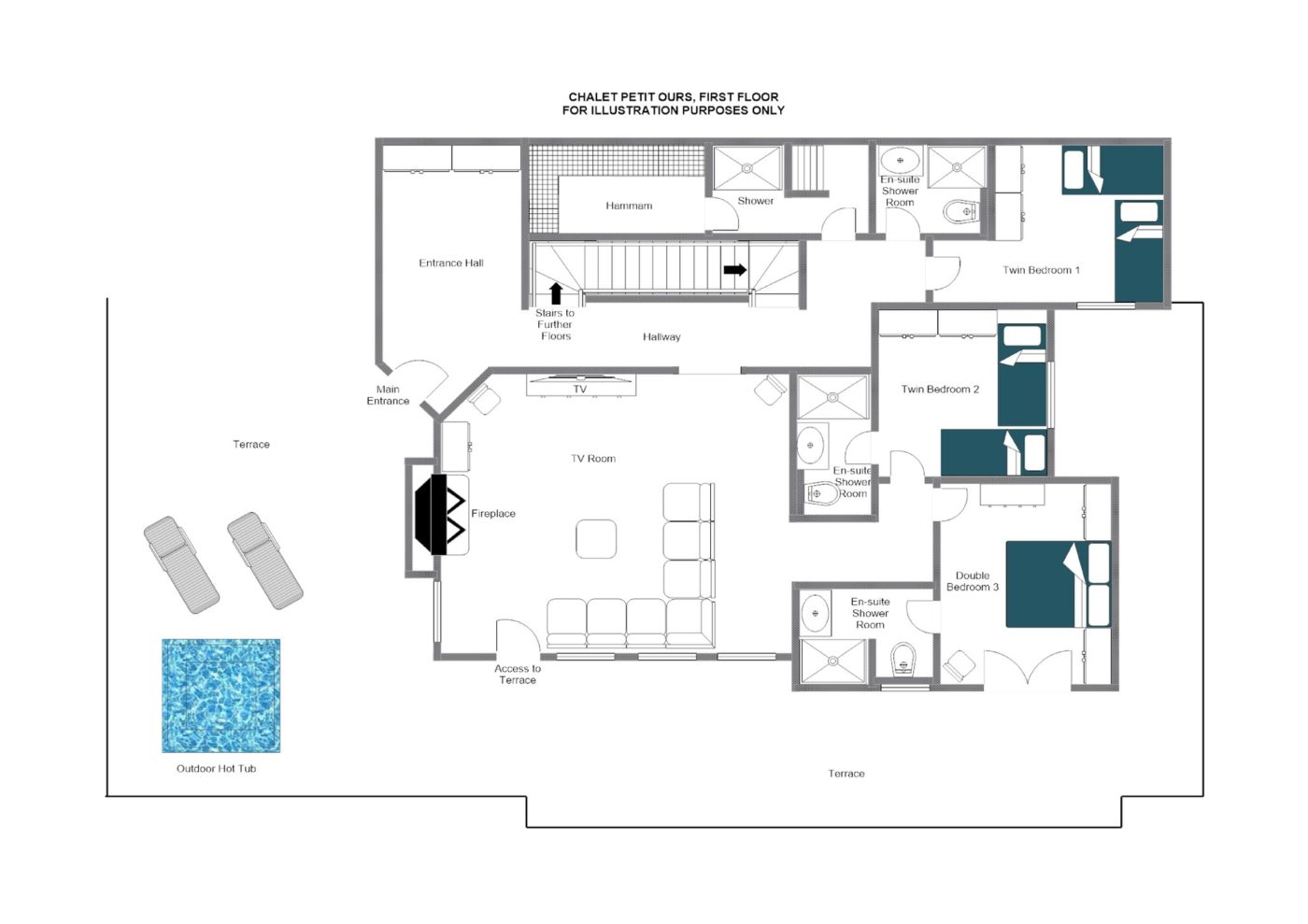
The remainder of the bedrooms are on the first floor where you will find a double bedroom with terrace access, and two twin bedrooms. All rooms have en suite or private shower rooms.
A particular highlight is the sunken outdoor hot tub on the first floor terrace. From here, guests can admire the panoramic views of the Grand and Petit Combin and the Mont Blanc massif whilst soaking out any post-ski tension. For further rest and relaxation, head to the hammam with en suite shower.
Chalet Petit Ours has table tennis in the ski room, private laundry facilities, and parking for one vehicle.



