Chalet Petheo is a gorgeous newly-renovated property with outstanding views of Verbier and the surrounding mountains from its living spaces, balcony and terrace. With five bedrooms and a total of 271m² of floor space, it comfortably accommodates up to eight adults and four children.
The chalet has been renovated to the highest contemporary standard. Aged wood panelling throughout the interior creates a calm, muted ambiance and a touch of rustic alpine charm to offset the contemporary furniture, decor and fittings.
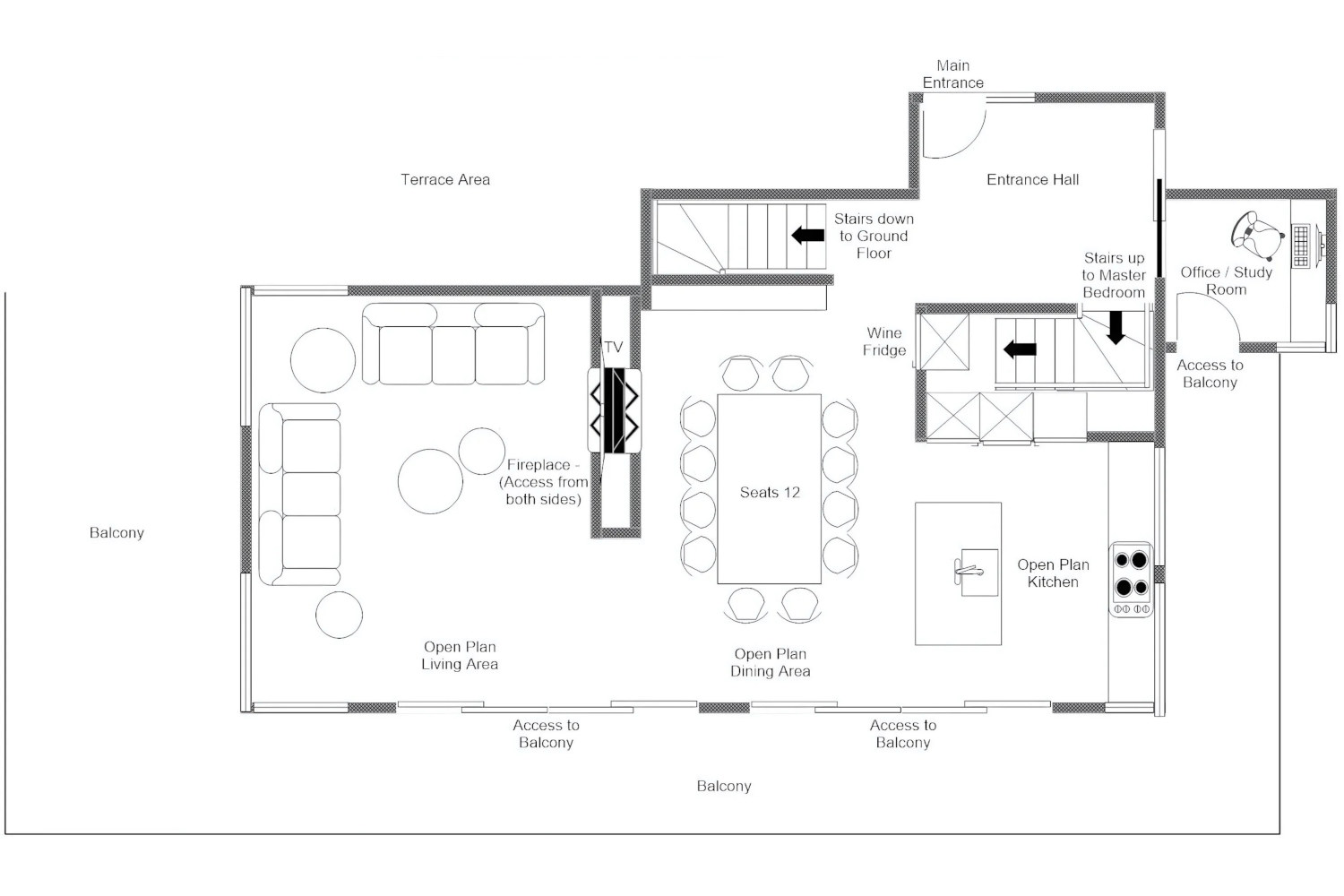
The main entrance on the first floor opens to an entrance hallway which leads through the perfectly balanced open-plan living spaces. A massive stone chimney breast housing a double-sided open fireplace, firewood storage and a large flat-screen TV separates the lounge area at one end of the space from the dining area and kitchen.
The lounge area has a pair of stylish grey-upholstered sofas and a pair of comfortable chairs arranged around a large floor rug and coffee tables in front of the hearth, with windows on three sides letting in plenty of light. This is the perfect spot to relax, socialise, watch TV or just gaze out at the mountains.
The dining area has a long wooden table seating ten, which stands in front the floor to ceiling sliding windows which extend across the front of living space, and open to the balcony that wraps around three sides of the chalet.
The spacious open kitchen has sleek dark stone worktops, state of the art appliances and a large island with a three-stool breakfast bar adjacent to the dining table.
Off the entrance hallway there is a study with access to the balcony.
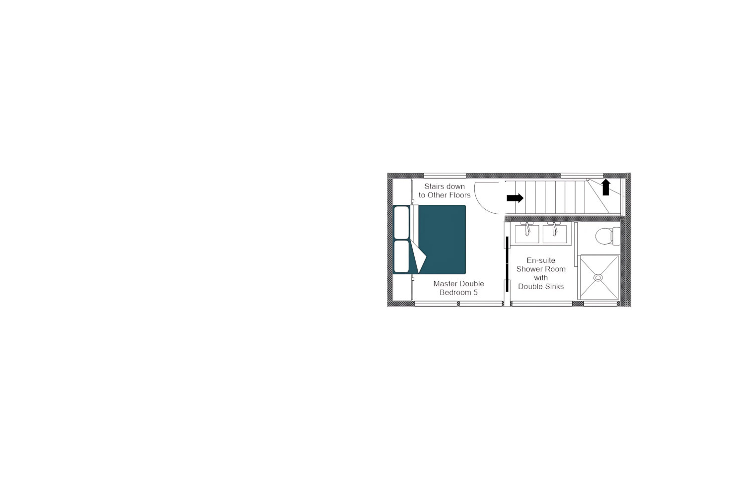
The upper floor of the chalet is taken up by the master bedroom suite. The master’s spacious and very stylish en suite has beautiful stone floors, his and hers sinks and a walk-in rain shower.
There are four more bedrooms on the ground floor, two of which have access to the stone-flagged terrace extending around the chalet and the garden. There are three double rooms, two of which have private en suite shower rooms. The third double bedroom shares a shower room with the fourth bedroom, a children’s quad bunk room.
To the rear of the ground floor there is a TV room, a laundry room, and the ski room which has its own exterior access.
Chalet Petheo’s spa facilities comprise a hammam on the ground floor with a rain shower, and an outdoor hot tub on the secluded terrace to the side of the chalet. This is the perfect spot for soothing tired muscles after an active day on the mountain and taking in the incredible views.
There are two outdoor parking spaces slightly downhill from the chalet, with a short walk up to the front door via a path.
Chalet Petheo is a fantastic property for a group of friends or family to enjoy Verbier in luxurious style.




