The penthouse extends over the third, fourth and top floors of the Grand Pré residence in Val d’Isère’s la Legettaz district, and is one of only four apartments in the building. The interiors are very much in tune with the contemporary alpine aesthetic, and feature wooden floors, wall paneling and ceilings throughout, and contemporary furnishings and fabrics in predominantly neutral shades with occasional splashes of colour.
The main entrance on the third floor of the building leads to the large open plan living, dining and kitchen area, which has double height beamed ceilings and a mezzanine above the kitchen, accessed via a ladder. Floor to ceiling windows at one end of the space, opening to a balcony, look out towards the famous la Face piste. The space is filled with natural light during daylight hours, and the views of the mountains are just as beautiful at night. If you fancy some stargazing, a telescope stands on a tripod in front of the windows.
On one side of the living space, a long L-shaped sofa and several armchairs are arranged around a low coffee table, and face a wood-burning fireplace with a TV mounted above. On the other side of the space is the kitchen and dining area, with a table seating eight and a modern open kitchen at the back of the room, with stone worktops and splashbacks and all the necessary appliances including a large wine fridge.
French doors open to a large balcony at the front of the living space, and a smaller one to the side next to the dining area. Both balconies have tables and comfortable outdoor seating.
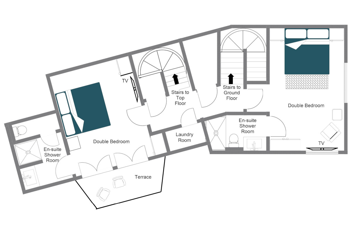
The master bedroom suite occupies the entire top floor of the apartment, and has a large en suite bathroom with a double sink and hammam shower, and a private balcony. There are two more double bedrooms on the middle floor, both with en suite shower rooms, and one with access to a private terrace. A fourth double bedroom with an en suite shower room is on the lower floor. All of the bedrooms have wall-mounted TVs.
Guests have access to Grand Pré residence’s shared spa area, with a swimming pool and sauna and space to relax after a day on the mountain.
There is a ski room with plenty of storage space and heated boot dryers next to the front door of the apartment, and space for storing coats and winter essentials in the entrance hallway. There are two reserved parking spaces with EV charging ports in the building’s basement garage.




